• Proyectos
  • Nosotros
  • Contacto
Terracotta Arquitectos
  • Proyectos
  • Nosotros
  • Contacto

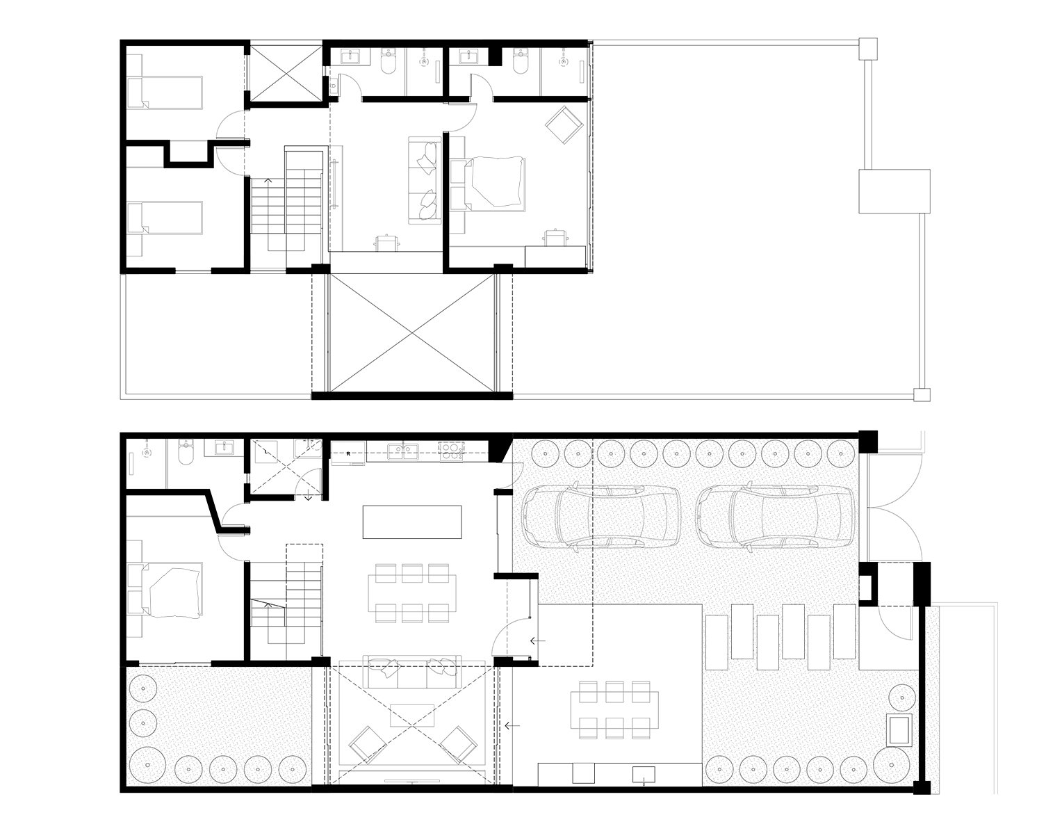
Casa Calicanto

Ubicación: Mala. Lima - Perú

Área: 180 m2

Año del proyecto: 2025

Cliente: privado

Proyecto Estructural: Jose Luis Samaniego

Servicio: Expediente Técnico y Construcción

Status: En construccion

20260209_1853_Image Generation_remix_01kh2d52fzeq4vkbmxd93exjf1.png
20260209_1942_Image Generation_remix_01kh2fy4y2e7cv8ca4nbq6j00q.png
20260209_1944_Image Generation_remix_01kh2g1pp2ez8b2njcfb9xmcg5.png
20260209_1956_Image Generation_remix_01kh2gqz4mfykbepsnedm6eey3.png
20260209_2008_Image Generation_remix_01kh2heg60fmtr5tkd98k9cacb.png
250817 CASA CB - PUB.jpg.jpg